Lantmannavägen 109 F
Letar du efter en butikslokal i Trollhättans södra stadsdelar? Då har vi den perfekta lokalen för dig!
Bra synlighet i ett stråk där många rör sig
Nu finns möjlighet att hyra denna trevliga lokal med toppläge mitt på Kronogårdstorg. Fastigheten och lokalen har nyligen genomgått en totalrenovering och stod klar våren 2024. Lokalen erbjuder stora skyltfönster mot torget, vilket ger mycket bra exponering och generöst ljusinsläpp.
Torget har nyligen fått ett rejält lyft genom omfattande renoveringar och moderniseringar av både fastigheter och offentliga ytor. Det innebär att området idag erbjuder en attraktiv miljö för både företagare och besökare. Här är det många som rör sig och på torget samlas vårdcentral, café, kiosk med paketutlämning, livsmedelsbutik, gym och bostäder. I närheten finns även skola, bibliotek och kulturhus.
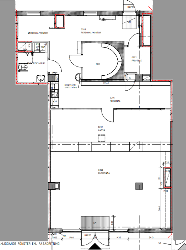
Lokalen har en inbjudande butiksyta med entré direkt från torget, samt en separat personalingång från baksidan. Längre in i lokalen finns praktiska personalutrymmen, förråd, RWC och kontor.
Strategiskt läge för ett apotek
Vi ser gärna att ett apotek etablerar sig här, då lokalen är anpassad för det och ligger perfekt i anslutning till den närliggande vårdcentralen. Det rör sig många människor i området och Kronogården är Trollhättans till invånarantalet största stadsdel med drygt 5 500 invånare. Idag finns inget apotek varken i Kronogården eller i den intilliggande stadsdelen Lextorp där ytterligare cirka 4 000 personer bor.
Vi välkomnar även annan öppen verksamhet som bidrar till ett levande och attraktivt torg
Tillträde: Enligt överenskommelse
Hyra: Enligt överenskommelse
El: IMD, Individuell mätning och debitering
Värme: Ingår i hyran
Varmvatten: IMD, Individuell mätning och debitering
Kyla: IMD, Individuell mätning och debitering

Planritning

Fasad, entré
Kontakt
Vill du veta mer om lokalen eller boka en visning? Gör en intresseanmälan eller kontakta förvaltaren Therese på 0520‑877 03 eller maila therese.bjelkengren@eidar.se