Spannmålsgatan 13
Söker du och din verksamhet en stor ledig lokal med öppna ytor mitt i centrala Trollhättan? Då har vi den perfekta lokalen för dig!
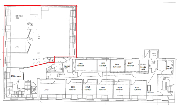
Nu finns möjligheten att hyra en rymlig lokal om 170 kvm på Spannmålsgatan 13, mitt i centrala Trollhättan. Lokalen är belägen på tredje våningen och erbjuder utsikt över Kungsgatan. Här får du öppna ytor kombinerat med två separata rum som passar utmärkt som kontor eller mötesrum.
Lokalen ligger i direkt anslutning till vårt kontorshotell, vilket innebär att du har tillgång till gemensamt konferensrum och pentry. För den som önskar finns även möjlighet att installera ett enklare pentry direkt i lokalen.
Lokalens centrala placering ger närhet till allt du kan tänkas behöva i vardagen. Odenhuset med butiker, mataffär, caféer och restauranger ligger precis intill, och för den som vill ta en paus finns kanalen med promenadstråk runt Spikön bara några minuter bort. Trollhättans resecentrum nås enkelt till fots, vilket underlättar för både anställda och besökare att ta sig till och från lokalen.
Detta är en flexibel lokal med centralt läge och goda kommunikationer, perfekt för företag som vill etablera sig mitt i stadens puls.
Tillträde: 2026-03-01 eller enligt överenskommelse
Hyra: Enligt överenskommelse
Storlek: 170 kvadratmeter
El: Ingår i hyran
Varmvatten: Ingår i hyran
Värme: Ingår i hyran
Komfortkyla: Ingår i hyran
Vill du veta mer om lokalen? Skicka din intresseanmälan idag!

Lokalytan, öppet landskap

Planritning våning 3, röd markerat lokalyta 170 kvm
Kontakt
För mer information om lokalen eller för att boka visning, kontakta förvaltaren Iida på 0520‑522 636 eller via mail: iida.pyttynen@eidar.se